Rif: cernuscosn
CERNUSCO SUL NAVIGLIO
MILANO
Cernusco Sul Naviglio, via Pasubio.
In palazzina di sole 6 unità edificata nel 2010 proponiamo splendido e signorile appartamenti di 3 LOCALI più servizi con GIARDINO PRIVATO e TAVERNA.
L'unità è così disposta:
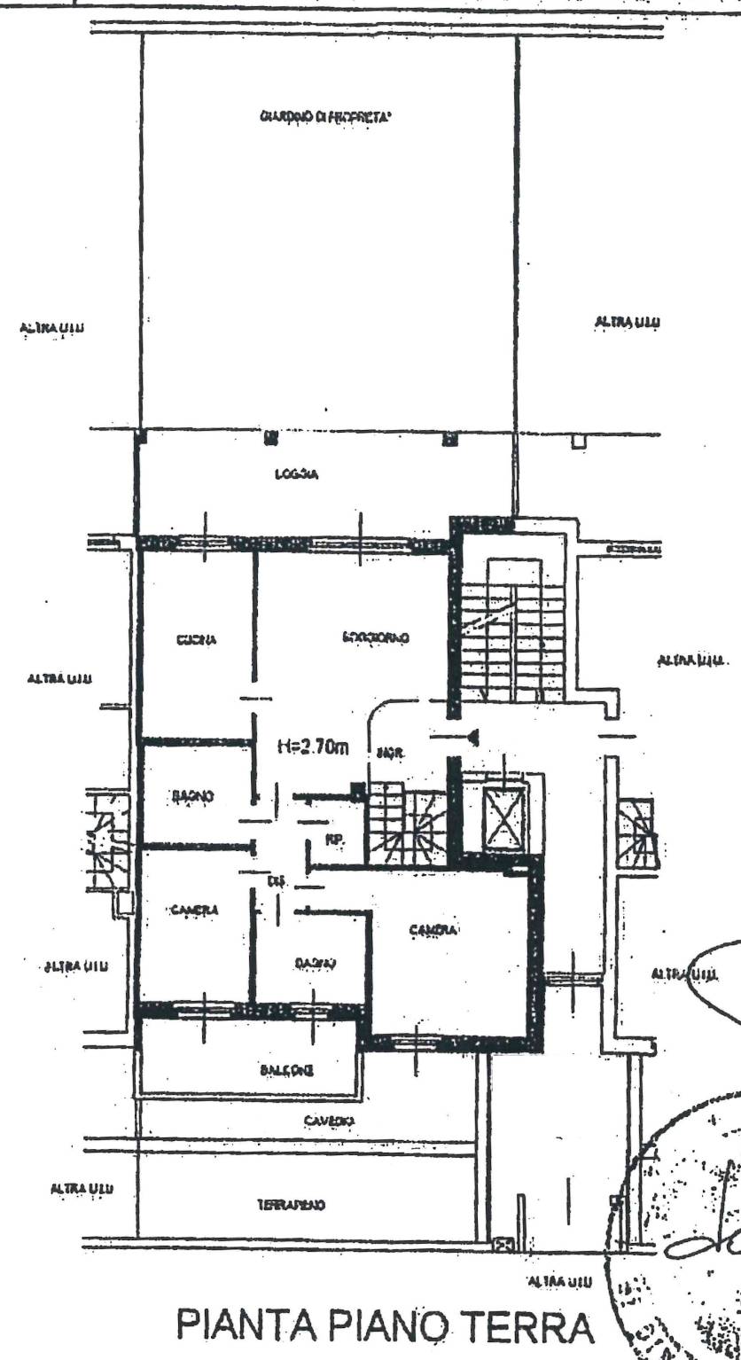
- piano terra di mq.94 circa composto da soggiorno, cucina abitabile, due ampie camere, doppi servizi, ripostiglio, giardino privato di circa mq.100 e balcone di mq.9;
- piano interrato di mq.36 circa con pratica taverna, bagno, ripostiglio e intercapedine aperto accessibile.
Box collegato direttamente alla taverna ad Eu..25.000,00.
Immobile in perfette condizioni dotato di riscaldamento a pavimento.
Libero dal 1/6/2026.
PREZZO ABITAZIONE Eu..483.000,00 - PREZZO BOX Eu..25.000,00
APE IN FASE DI CERTIFICAZIONE.
In palazzina di sole 6 unità edificata nel 2010 proponiamo splendido e signorile appartamenti di 3 LOCALI più servizi con GIARDINO PRIVATO e TAVERNA.
L'unità è così disposta:
- piano terra di mq.94 circa composto da soggiorno, cucina abitabile, due ampie camere, doppi servizi, ripostiglio, giardino privato di circa mq.100 e balcone di mq.9;
- piano interrato di mq.36 circa con pratica taverna, bagno, ripostiglio e intercapedine aperto accessibile.
Box collegato direttamente alla taverna ad Eu..25.000,00.
Immobile in perfette condizioni dotato di riscaldamento a pavimento.
Libero dal 1/6/2026.
PREZZO ABITAZIONE Eu..483.000,00 - PREZZO BOX Eu..25.000,00
APE IN FASE DI CERTIFICAZIONE.
Consistenze
Descrizione | Superficie | Sup. comm. |
---|---|---|
Principali | ||
Immobile - piano terra | 94 Mq | 94 Mqc |
Cantina - piano interrato | 36 Mq | 18 Mqc |
Giardino/Resede | 100 Mq | 5 Mqc |
Balcone - piano terra | 9 Mq | 4 Mqc |
Totale | 121 Mqc |